Количество рабочих мест:
14
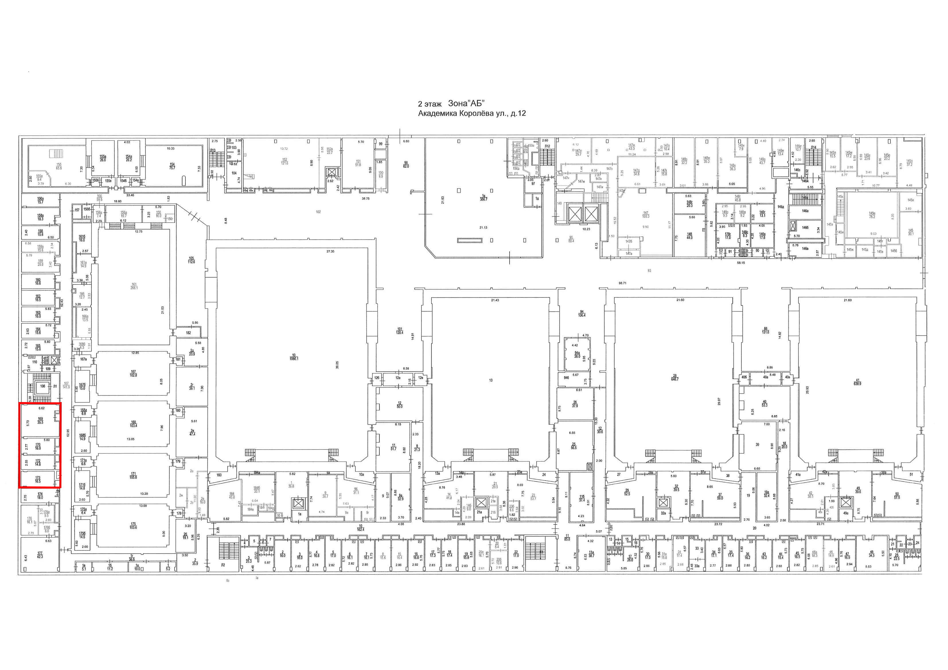
Здание:
АСК-1
Этаж:
2
Общая площадь:
84 m2
Сообщения не найдены
