Количество рабочих мест:
12
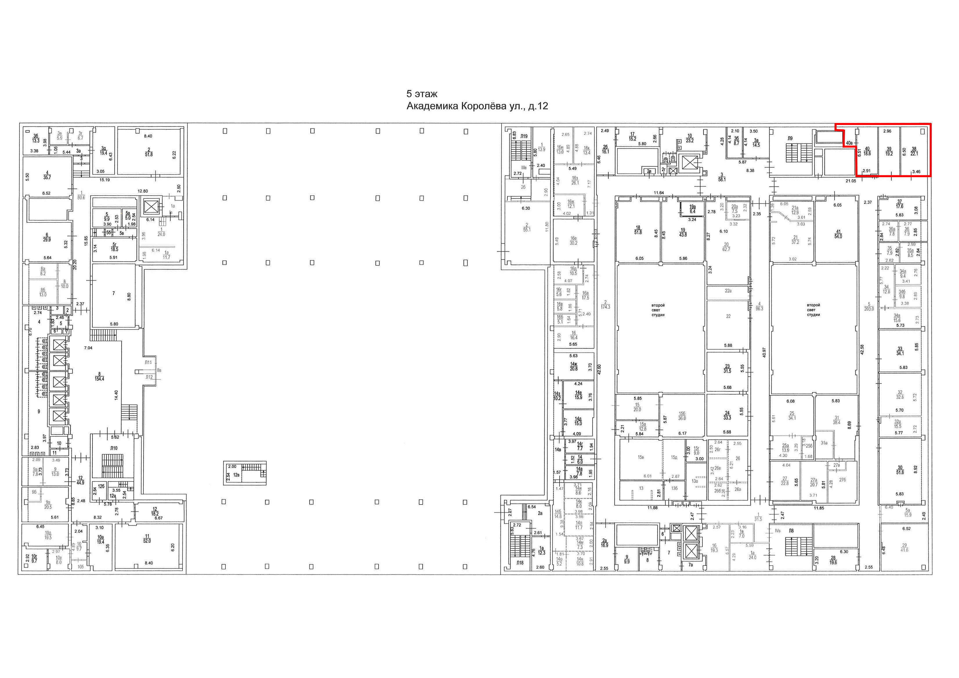
Здание:
АСК-1
Этаж:
5
Общая площадь:
70 m2
Сообщения не найдены
