Количество рабочих мест:
22
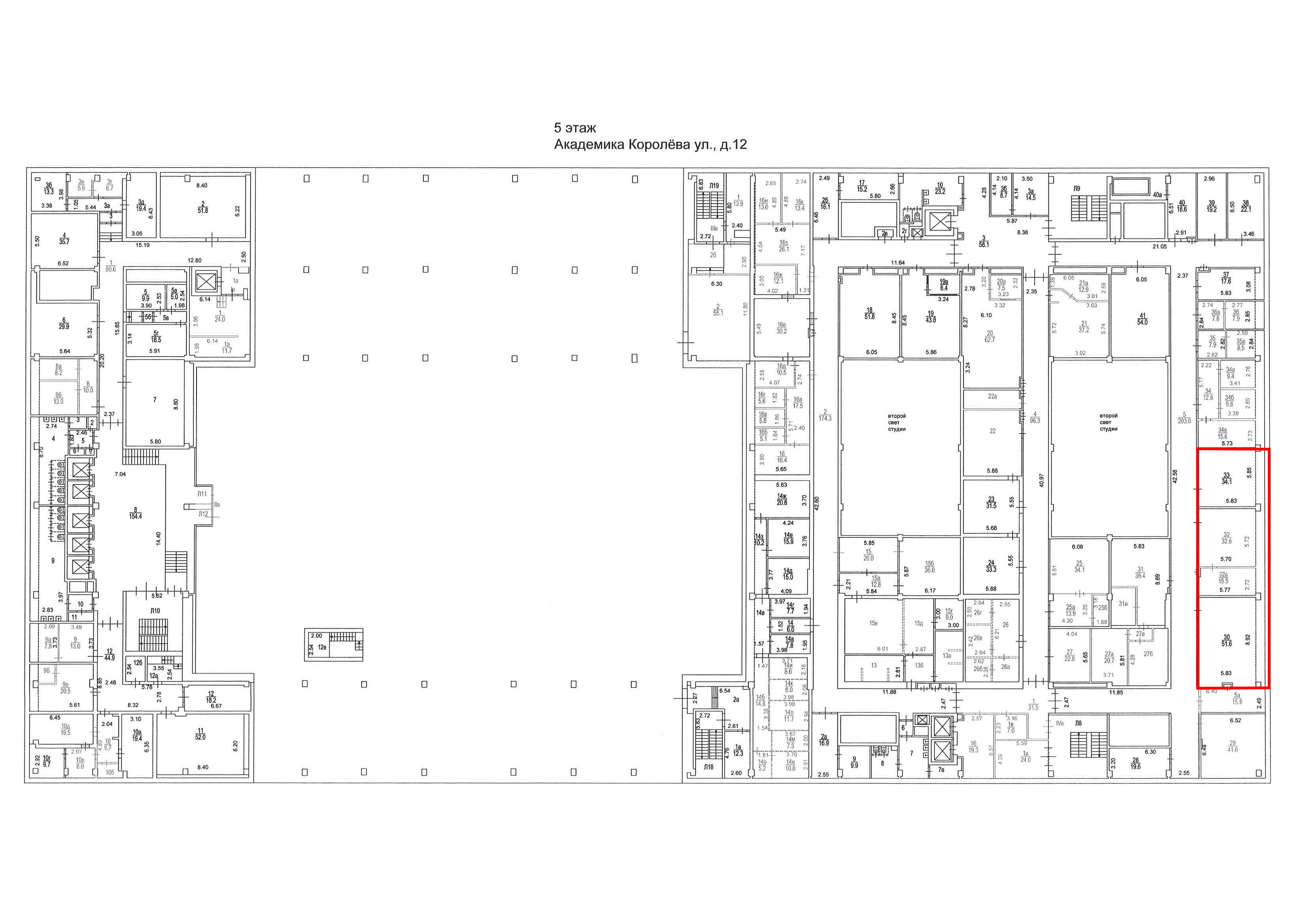
Здание:
АСК-1
Этаж:
5
Общая площадь:
133 m2
Сообщения не найдены
